ΠΑΝΕΛΛΗΝΙΕΣ
ΜΑΘΗΜΑΤΑ ΓΡΑΜΜΙΚΟΥ & ΕΛΕΥΘΕΡΟΥ ΣΧΕΔΙΟΥ
Τα ΜΑΘΗΜΑΤΑ ΓΡΑΜΜΙΚΟΥ ΣΧΕΔΙΟΥ αποτελούν το πρώτο στάδιο του αρχιτεκτονικού σχεδιασμού. ΕΛΕΥΘΕΡΟ ΣΧΕΔΙΟ ονομάζεται, το σχέδιο που γίνεται χωρίς την βοήθεια σχεδιαστικών οργάνων δηλαδή με ελεύθερο χέρι, όπως συνηθίζεται να λέγεται. Σχετικά με τις ΠΑΝΕΛΛΗΝΙΕΣ διαθέτονται θέματα Πανελληνίων εξετάσεων.
Σχετικά με το ΓΡΑΜΜΙΚΟ ΣΧΕΔΙΟ
Το ΓΡΑΜΜΙΚΟ ΣΧΕΔΙΟ αποτελεί το πρώτο στάδιο του αρχιτεκτονικού σχεδιασμού, που αυτό με την σειρά του αποτελεί ένα από τα βασικά εργαλεία που βοηθούν τους μελετητές να εκφράζουν καθώς και να εξελίσσουν τις ιδέες τους.
Σχετικά με το ΕΛΕΥΘΕΡΟ ΣΧΕΔΙΟ
ΕΛΕΥΘΕΡΟ ΣΧΕΔΙΟ ονομάζεται, το σχέδιο που γίνεται χωρίς την βοήθεια σχεδιαστικών οργάνων δηλαδή με ελεύθερο χέρι, όπως συνηθίζεται να λέγεται.
- Γραμμικό Σχέδιο
- Ελεύθερο σχέδιο
- Εξετάσεις Ομογενών
- Εισαγωγή απο ΕΠΑΛ
![]()
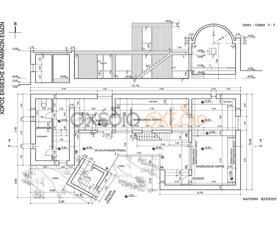
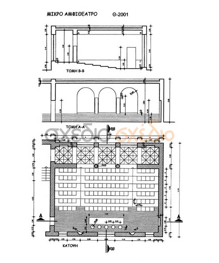
ΓΡΑΜΜΙΚΟ ΣΧΕΔΙΟ
Περιγραφή
Το ΓΡΑΜΜΙΚΟ ΣΧΕΔΙΟ αποτελεί το πρώτο στάδιο του αρχιτεκτονικού σχεδιασμού, που αυτό με την σειρά του αποτελεί ένα από τα βασικά εργαλεία που βοηθούν τους μελετητές να εκφράζουν καθώς και να εξελίσσουν τις ιδέες τους. Στο μάθημα του γραμμικού σχεδίου οι μαθητές καλούνται να εξοικειωθούν με τεχνικούς όρους και την σωστή διαχείριση των οργάνων σχεδίασης με αποτέλεσμα την ορθή σχεδίαση.
Οι μαθητές σταδιακά έρχονται σε επαφή με μια νέα γλώσσα επικοινωνίας. Αρχίζουν δηλαδή πρωτίστως να την μαθαίνουν και δευτερευόντως να την χρησιμοποιούν για να επικοινωνήσουν και αυτοί με την σειρά τους.
Η εκμάθηση αυτής της γλώσσας έχει ως κύριο συστατικό την ορθή αλλά και την ποιοτική σχεδίαση. Καλούνται δηλαδή να κατανοούν στοιχεία που εμφανίζονται με διάφορους συμβολισμούς και ειδή γραμμών, να τα αποκωδικοποιούν και να σχεδιάζουν κατά την προσωπική τους κρίση.
Άλλωστε σχεδόν πάντα στις εξετάσεις υπάρχει αυτή η αναζήτηση στα ζητούμενα των θεμάτων. Έστω και σε περιορισμένη έκταση, η προσωπική κρίση απαιτεί γνωστικό υπόβαθρο και αυτό είναι που απαιτείται να αποκτηθεί κατά την διαδικασία εκμάθησης του γραμμικού σχεδίου.
Αν ο μαθητής δεν κατανοήσει την δυσδιάστατη παρουσίαση του δομημένου και αδόμητου χώρου (μέσω επιμέρους σχεδίων όπως είναι η κάτοψη, η όψη, η τομή) είναι δύσκολο να μπορέσει να την αποτυπώσει, πόσο μάλιστα να την αποδώσει ποιοτικά καθώς και να την πλαισιώσει με ελεύθερα η μη στοιχεία με προσωπική κρίση.
Κατά την διάρκεια της εξέτασης του ειδικού μαθήματος γραμμικό σχέδιο οι εξεταζόμενοι έρχονται αντιμέτωποι με:
- Την πίεση του χρόνου παράδοσης. Η διάρκεια της εξέτασης είναι 6 ώρες, αν και ακούγεται επαρκής η σε κάποιους που δεν έχουν καμιά επαφή με το γραμμικό σχέδιο υπερβολικός, πραγματικά για κάποια εξεταζόμενα θέματα είναι τόσο όσο. Αν δηλαδή ο εξεταζόμενος δεν έχει εμπειρία και δεν έχει διδαχτεί μεθοδολογία ο χρόνος ίσως να αποτελέσει και την κυριότερη συνιστώσα για την επιτυχία της εξέτασης του ειδικού μαθήματος.
- Την ορθή και την πλήρη σχεδίαση (πληρότητα και ορθότητα). Στους εξεταζόμενους δίνεται το σχεδιαστικό προς εξέταση θέμα και αυτοί καλούνται να το μεταφέρουν κατά το πλείστον σε μεγέθυνση (υπό κλίμακα που τους ζητείται). Καλούνται αφού το ολοκληρώσουν τις περισσότερες φορές όλο με πενάκι να το πλαισιώσουν και με στοιχεία κατά την κρίση τους. Δηλαδή να το μεταφέρουν σωστά, όλο και με τα κριτήρια της ορθής σχεδίασης ώστε να μπορέσουν να αξιολογηθούν σε αυτό.
- Την ποιότητα σχεδίασης. Το σχέδιο πρέπει να αποπνέει προσωπικότητα που την δίδουν οι εξεταζόμενοι στο σχέδιο τους. Με την επιλογή στα πάχη των γραμμών, των γραμμάτων καθώς και των απαιτούμενων συμβόλων. Αυτή η προσωπικότητα κατακτάται μέσω μεθοδολογίας δεν υιοθετείται αλλά διαμορφώνεται και αυτό επιχειρούμε να κάνουμε.
Αυτό προσπαθούμε. Να δείξουμε τον τρόπο και να κατακτήσει ο κάθε εξεταζόμενος στο γραμμικό σχέδιο τη δική του προσωπικότητα.
| ΔΟΜΗ ΤΜΗΜΑΤΟΣ | |
| 6-8 μαθητές | |
| επιλογή καθηγητή | |
| 60΄μαθήματα | |
| ΠΑΡ- ΣΑΒ | |
ONLINE ΜΑΘΗΜΑΤΑ |
| Επικοινωνήστε μαζί μας Καλέστε μας στο 2310 25 20 07 |
Θέματα γραμμικού σχεδίου μαθητών μας
από τους μαθητές του ''σχέδιο σχέδιο''
από τους μαθητές του ''σχέδιο σχέδιο''
από τους μαθητές του ''σχέδιο σχέδιο''
από τους μαθητές του ''σχέδιο σχέδιο''
από τους μαθητές του ''σχέδιο σχέδιο''
από τους μαθητές του ''σχέδιο σχέδιο''
από τους μαθητές του ''σχέδιο σχέδιο''
από τους μαθητές του ''σχέδιο σχέδιο''
από τους μαθητές του ''σχέδιο σχέδιο''
από τους μαθητές του ''σχέδιο σχέδιο''
από τους μαθητές του ''σχέδιο σχέδιο''
από τους μαθητές του ''σχέδιο σχέδιο''
Θέματα πανελληνίων εξετάσεων γραμμικού σχεδίου

ΘΕΜΑ ΓΡΑΜΜΙΚΟΥ 2022
ΘΕΜΑ ΓΡΑΜΜΙΚΟΥ 2022

ΘΕΜΑ ΓΡΑΜΜΙΚΟΥ 2021
ΘΕΜΑ ΓΡΑΜΜΙΚΟΥ 2021

ΘΕΜΑ ΓΡΑΜΜΙΚΟΥ 2020
ΘΕΜΑ ΓΡΑΜΜΙΚΟΥ 2020

ΘΕΜΑ ΓΡΑΜΜΙΚΟΥ 2019
ΘΕΜΑ ΓΡΑΜΜΙΚΟΥ 2019

ΘΕΜΑ ΓΡΑΜΜΙΚΟΥ 2018
ΘΕΜΑ ΓΡΑΜΜΙΚΟΥ 2018

ΘΕΜΑ ΓΡΑΜΜΙΚΟΥ 2017
ΘΕΜΑ ΓΡΑΜΜΙΚΟΥ 2017

ΘΕΜΑ ΓΡΑΜΜΙΚΟΥ 2016
ΘΕΜΑ ΓΡΑΜΜΙΚΟΥ 2016

ΘΕΜΑ ΓΡΑΜΜΙΚΟΥ 2015
ΘΕΜΑ ΓΡΑΜΜΙΚΟΥ 2015

ΘΕΜΑ ΓΡΑΜΜΙΚΟΥ 2014
ΘΕΜΑ ΓΡΑΜΜΙΚΟΥ 2014

ΘΕΜΑ ΓΡΑΜΜΙΚΟΥ 2013
ΘΕΜΑ ΓΡΑΜΜΙΚΟΥ 2013

ΘΕΜΑ ΓΡΑΜΜΙΚΟΥ 2012
ΘΕΜΑ ΓΡΑΜΜΙΚΟΥ 2012

ΘΕΜΑ ΓΡΑΜΜΙΚΟΥ 2011
ΘΕΜΑ ΓΡΑΜΜΙΚΟΥ 2011

ΘΕΜΑ ΓΡΑΜΜΙΚΟΥ 2010
ΘΕΜΑ ΓΡΑΜΜΙΚΟΥ 2010

ΘΕΜΑ ΓΡΑΜΜΙΚΟΥ 2009
ΘΕΜΑ ΓΡΑΜΜΙΚΟΥ 2009

ΘΕΜΑ ΓΡΑΜΜΙΚΟΥ 2008
ΘΕΜΑ ΓΡΑΜΜΙΚΟΥ 2008

ΘΕΜΑ ΓΡΑΜΜΙΚΟΥ 2007
ΘΕΜΑ ΓΡΑΜΜΙΚΟΥ 2007

ΘΕΜΑ ΓΡΑΜΜΙΚΟΥ 2006
ΘΕΜΑ ΓΡΑΜΜΙΚΟΥ 2006

ΘΕΜΑ ΓΡΑΜΜΙΚΟΥ 2005
ΘΕΜΑ ΓΡΑΜΜΙΚΟΥ 2005

ΘΕΜΑ ΓΡΑΜΜΙΚΟΥ 2004
ΘΕΜΑ ΓΡΑΜΜΙΚΟΥ 2004

ΘΕΜΑ ΓΡΑΜΜΙΚΟΥ 2003
ΘΕΜΑ ΓΡΑΜΜΙΚΟΥ 2003

ΘΕΜΑ ΓΡΑΜΜΙΚΟΥ 2002
ΘΕΜΑ ΓΡΑΜΜΙΚΟΥ 2002

ΘΕΜΑ ΓΡΑΜΜΙΚΟΥ 2001
ΘΕΜΑ ΓΡΑΜΜΙΚΟΥ 2001
Τρόπος εξέτασης γραμμικού σχεδίου
Οι υποψήφιοι εξετάζονται στο Γραμμικό Σχέδιο κατά τη διάρκεια 6ωρης εξέτασης, σε περιορισμένο αριθμό εξεταστικών κέντρων σε Αθήνα & Θεσσαλονίκη. Ο καταμερισμός των υποψηφίων στα εξεταστικά κέντρα γίνεται αλφαβητικά και βάσει του τόπου διαμονής τους.
Οι εξετάσεις γίνονται σε συγκεκριμένη ημερομηνία που ορίζεται από το Υπουργείο Παιδείας.
Η εκφώνηση του θέματος δίνεται στους υποψηφίους σε κόλλες Α4, και η παράδοσή του γίνεται σε κόλλα 50Χ70 εκ. η οποία και τους δίδεται. Όλα τα απαιτούμενα σχεδιαστικά όργανα, καθώς και την πινακίδα σχεδίασης, οι υποψήφιοι πρέπει να τα έχουν μαζί τους την ημέρα των εξετάσεων.
Η σχεδίαση του θέματος γίνεται αρχικά με μολύβι, και κατόπιν το σχέδιο μελανώνεται με τη χρήση ραπιδογράφων.
Οι υποψήφιοι αξιολογούνται ως προς την σωστή μεταφορά του θέματος στη ζητούμενη κλίμακα, την σωστή τοποθέτηση και την ορθότητά των σχεδίων, και την γενικότερη σχεδιαστική τους ικανότητα.
Ένα άριστο γραμμικό σχέδιο βαθμολογείται με 2000 μόρια, ενώ απαιτείται τουλάχιστον η βάση για τη δυνατότητα εισαγωγής σε μια από τις σχολές για τις οποίες είναι προαπαιτούμενο.
* οι παραπάνω πληροφορίες αφορούν στον έως τώρα ισχύοντα τρόπο πανελλαδικών εξετάσεων.
Σχολές για τις οποίες το Γραμμικό σχέδιο είναι ειδικό μάθημα
Α.Ε.Ι.
- Αρχιτεκτόνων Μηχανικών ΕΜΠ Αθήνας
- Αρχιτεκτόνων Μηχανικών Θεσσαλονίκης
- Αρχιτεκτόνων Μηχανικών Πάτρας
- Αρχιτεκτόνων Μηχανικών Θεσσαλίας (Βόλος)
- Αρχιτεκτόνων Μηχανικών Θράκης (Ξάνθη)
- Αρχιτεκτόνων Μηχανικών Κρήτης (Χανιά)
- Πλαστικών Τεχνών & Επιστημών της Τέχνης (Ιωάννινα) (απαιτείται μόνο ελεύθερο σχέδιο)
Α.Τ.Ε.Ι.
- Εσωτερικής Αρχιτεκτονικής, Διακόσμησης & Σχεδίασης Αντικειμένων Αθηνών
- Γραφιστικής Αθηνών
- Τεχνολογίας Γραφικών Τεχνών Αθηνών
- Συντήρησης Αρχαιοτήτων & Έργων Τέχνης Αθηνών
- Συντήρησης πολιτισμικής κληρονομιάς ιονίων νήσων (Ζάκυνθος)
![]()
ΕΛΕΥΘΕΡΟ ΣΧΕΔΙΟ
Περιγραφή
ΕΛΕΥΘΕΡΟ ΣΧΕΔΙΟ ονομάζεται, το σχέδιο που γίνεται χωρίς την βοήθεια σχεδιαστικών οργάνων δηλαδή με ελεύθερο χέρι, όπως συνηθίζεται να λέγεται. Σκοποί του ελευθέρου σχεδίου είναι η ανάπτυξη της παρατηρητικότητας και η παράλληλη άσκηση του χεριού, ώστε ο μαθητής να μεταφέρει στο χαρτί σχεδίασης με όσο το δυνατό μεγαλύτερη ακρίβεια την προς σχεδίαση σύνθεση.
Για την εξοικείωση του με αυτό το είδος σχεδίου ο μαθητής πρέπει στην αρχή να συνηθίσει να σχεδιάζει μεμονωμένα αντικείμενα, κατόπιν ομάδες αντικειμένων και τέλος πιο σύνθετα θέματα.
Βασικά στοιχεία στο ελεύθερο σχέδιο είναι:
- Η σωστή τοποθέτηση
- Το σωστό μέγεθος
- Η ακριβής απόδοση της ολοκληρωμένης εικόνας του αντικείμενου
Το ελεύθερο σχέδιο διδάσκεται σε ειδικά διαμορφωμένους χώρους, ώστε η σύνθεση να είναι ορατή από όλους τους διδασκόμενους και με ποικίλες συνθέσεις. Η εξάσκηση είναι πολύ σημαντική στο ελεύθερο σχέδιο και ο απαιτούμενος χρόνος ώστε ένας μαθητής να προετοιμαστεί για τις εξετάσεις ποικίλλει και σε αυτό συνδράμουν πολλοί παράγοντες. Ο κυριότερος είναι η μεθοδικότητα στην διδασκαλία ώστε να βγει ένα άρτιο σχέδιο (χωρίς κυρίως λάθη προοπτικής) καθώς και ένα ολοκληρωμένο σχέδιο από άποψη τονικότητας και υφών.
Ουσιαστικά και πρακτικά μαθαίνουμε να αποδίδουμε αυτό που βλέπουμε και να το τοποθετούμε σωστά στο χαρτί εξέτασης πλαισιώνοντας το με τονικές διαβαθμίσεις που θα μας χαρίσουν ένα άρτιο σχέδιο.
Το ελεύθερο σχέδιο εκτός από τις αρχές σχεδίασης επιβάλλεται να έχει προσωπικότητα η όποια προκύπτει κυρίως από τον τρόπο διαχείρισης της γραφής και του γραφίτη δηλαδή του μολυβιού.
Αυτό προσπαθούμε. Ο διδασκόμενος να διδαχτεί και να αποκτήσει σχεδιαστική προσωπικότητα που θα τον βοηθήσει να ανταπεξέλθει τόσο στον απαιτούμενο σχεδιαστικό χρόνο όσο και στην οποιαδήποτε προς σχεδίαση σύνθεση στις εξετάσεις του.
| ΔΟΜΗ ΤΜΗΜΑΤΟΣ | |
| |
6-8 μαθητές |
| |
επιλογή καθηγητή |
| |
60΄μαθήματα |
| |
ΠΑΡ- ΣΑΒ |
ONLINE ΜΑΘΗΜΑΤΑ |
| Επικοινωνήστε μαζί μας Καλέστε μας στο 2310 25 20 07 |
Θέματα ελεύθερου σχεδίου μαθητών μας
από τους μαθητές του ''σχέδιο σχέδιο''
από τους μαθητές του ''σχέδιο σχέδιο''
από τους μαθητές του ''σχέδιο σχέδιο''
από τους μαθητές του ''σχέδιο σχέδιο''
από τους μαθητές του ''σχέδιο σχέδιο''
από τους μαθητές του ''σχέδιο σχέδιο''
από τους μαθητές του ''σχέδιο σχέδιο''
από τους μαθητές του ''σχέδιο σχέδιο''
από τους μαθητές του ''σχέδιο σχέδιο''
από τους μαθητές του ''σχέδιο σχέδιο''
από τους μαθητές του ''σχέδιο σχέδιο''
από τους μαθητές του ''σχέδιο σχέδιο''
από τους μαθητές του ''σχέδιο σχέδιο''
από τους μαθητές του ''σχέδιο σχέδιο''
από τους μαθητές του ''σχέδιο σχέδιο''
Θέματα πανελληνίων εξετάσεων ελεύθερου σχεδίου

ΘΕΜΑ ΕΛΕΥΘΕΡΟΥ 2022
ΘΕΜΑ ΕΛΕΥΘΕΡΟΥ 2022

ΘΕΜΑ ΕΛΕΥΘΕΡΟΥ 2021
ΘΕΜΑ ΕΛΕΥΘΕΡΟΥ 2021

ΘΕΜΑ ΕΛΕΥΘΕΡΟΥ 2020
ΘΕΜΑ ΕΛΕΥΘΕΡΟΥ 2020

ΘΕΜΑ ΕΛΕΥΘΕΡΟΥ 2019
ΘΕΜΑ ΕΛΕΥΘΕΡΟΥ 2019

ΘΕΜΑ ΕΛΕΥΘΕΡΟΥ 2018
ΘΕΜΑ ΕΛΕΥΘΕΡΟΥ 2018

ΘΕΜΑ ΕΛΕΥΘΕΡΟΥ 2017
ΘΕΜΑ ΕΛΕΥΘΕΡΟΥ 2017

ΘΕΜΑ ΕΛΕΥΘΕΡΟΥ 2016
ΘΕΜΑ ΕΛΕΥΘΕΡΟΥ 2016

ΘΕΜΑ ΕΛΕΥΘΕΡΟΥ 2015
ΘΕΜΑ ΕΛΕΥΘΕΡΟΥ 2015

ΘΕΜΑ ΕΛΕΥΘΕΡΟΥ 2014
ΘΕΜΑ ΕΛΕΥΘΕΡΟΥ 2014

ΘΕΜΑ ΕΛΕΥΘΕΡΟΥ 2013
ΘΕΜΑ ΕΛΕΥΘΕΡΟΥ 2013

ΘΕΜΑ ΕΛΕΥΘΕΡΟΥ 2012
ΘΕΜΑ ΕΛΕΥΘΕΡΟΥ 2012

ΘΕΜΑ ΕΛΕΥΘΕΡΟΥ 2011
ΘΕΜΑ ΕΛΕΥΘΕΡΟΥ 2011

ΘΕΜΑ ΕΛΕΥΘΕΡΟΥ 2010
ΘΕΜΑ ΕΛΕΥΘΕΡΟΥ 2010

ΘΕΜΑ ΕΛΕΥΘΕΡΟΥ 2009
ΘΕΜΑ ΕΛΕΥΘΕΡΟΥ 2009

ΘΕΜΑ ΕΛΕΥΘΕΡΟΥ 2008
ΘΕΜΑ ΕΛΕΥΘΕΡΟΥ 2008

ΘΕΜΑ ΕΛΕΥΘΕΡΟΥ 2007
ΘΕΜΑ ΕΛΕΥΘΕΡΟΥ 2007

ΘΕΜΑ ΕΛΕΥΘΕΡΟΥ 2006
ΘΕΜΑ ΕΛΕΥΘΕΡΟΥ 2006

ΘΕΜΑ ΕΛΕΥΘΕΡΟΥ 2005
ΘΕΜΑ ΕΛΕΥΘΕΡΟΥ 2005

ΘΕΜΑ ΕΛΕΥΘΕΡΟΥ 2004
ΘΕΜΑ ΕΛΕΥΘΕΡΟΥ 2004

ΘΕΜΑ ΕΛΕΥΘΕΡΟΥ 2003
ΘΕΜΑ ΕΛΕΥΘΕΡΟΥ 2003

ΘΕΜΑ ΕΛΕΥΘΕΡΟΥ 2002
ΘΕΜΑ ΕΛΕΥΘΕΡΟΥ 2002

ΘΕΜΑ ΕΛΕΥΘΕΡΟΥ 2001
ΘΕΜΑ ΕΛΕΥΘΕΡΟΥ 2001
Τρόπος εξέτασης ελεύθερου σχεδίου
Οι υποψήφιοι διαγωνίζονται στο Ελεύθερο Σχέδιο κατά τη διάρκεια 6ωρης εξέτασης, σε περιορισμένο αριθμό εξεταστικών κέντρων σε Αθήνα & Θεσσαλονίκη. Ο καταμερισμός των υποψηφίων στα εξεταστικά κέντρα γίνεται βάσει του τόπου διαμονής τους, και αλφαβητικά.
Οι εξετάσεις γίνονται σε συγκεκριμένη ημερομηνία που ορίζεται από το Υπουργείο Παιδείας.
Οι εξεταζόμενοι καλούνται να αποδώσουν με ακρίβεια και ρεαλιστικότητα μια σύνθεση από ένα πλήθος αντικειμένων, που στήνεται στις αίθουσες των εξεταστικών κέντρων. Η σχεδιαστική αυτή απόδοση γίνεται σε κόλλα 50Χ70 εκ., η οποία και τους δίδεται, χρησιμοποιώντας μολύβι. Δεν επιτρέπεται σχεδίαση σε καβαλέτο.
Το σχέδιο βαθμολογείται για την ορθότητά του, ως προς την προοπτική των αντικειμένων της σύνθεσης, και την ρεαλιστική απόδοση του, όσο και για τη σχεδιαστική δεινότητα του εξεταζομένου.
Ένα άριστο ελεύθερο σχέδιο βαθμολογείται με 2000 μόρια, ενώ απαιτείται τουλάχιστον η βάση για τη δυνατότητα εισαγωγής σε μια από τις σχολές για τις οποίες αποτελεί ειδικό μάθημα.
* οι παραπάνω πληροφορίες αφορούν στον έως τώρα ισχύοντα τρόπο πανελλαδικών εξετάσεων.
Σχολές για τις οποίες το Ελεύθερο σχέδιο είναι ειδικό μάθημα
Α.Ε.Ι.
- Αρχιτεκτόνων Μηχανικών ΕΜΠ Αθήνας
- Αρχιτεκτόνων Μηχανικών Θεσσαλονίκης
- Αρχιτεκτόνων Μηχανικών Πάτρας
- Αρχιτεκτόνων Μηχανικών Θεσσαλίας (Βόλος)
- Αρχιτεκτόνων Μηχανικών Θράκης (Ξάνθη)
- Αρχιτεκτόνων Μηχανικών Κρήτης (Χανιά)
- Πλαστικών Τεχνών & Επιστημών της Τέχνης (Ιωάννινα) (απαιτείται μόνο ελεύθερο σχέδιο)
Α.Τ.Ε.Ι.
- Εσωτερικής Αρχιτεκτονικής, Διακόσμησης & Σχεδίασης Αντικειμένων Αθηνών
- Γραφιστικής Αθηνών
- Τεχνολογίας Γραφικών Τεχνών Αθηνών
- Συντήρησης Αρχαιοτήτων & Έργων Τέχνης Αθηνών
- Συντήρησης πολιτισμικής κληρονομιάς ιονίων νήσων (Ζάκυνθος)
![]()
Ελεύθερο και Γραμμικό Σχέδιο Ομογενών
Περιγραφή
Οι μαθητές που εντάσσονται σε αυτήν την κατηγορία είναι :
- Τέκνων Ελλήνων του εξωτερικού αποφοίτων ελληνικών λυκείων
- Τέκνων Ελλήνων υπαλλήλων αποσπασμένων σε ελληνικές δημόσιες υπηρεσίες στο εξωτερικό η σε διεθνείς οργανισμούς στους οποίους μετέχει και η Ελλάδα, αποφοίτων ελληνικών λυκείων
- Ελλήνων αποφοίτων ξένων λυκείων ή αντίστοιχων σχολείων που λειτουργούν στο εξωτερικό (με πρόγραμμα σπουδών χώρας-μέλους της ευρωπαϊκής ένωσης)
- Ελλήνων αποφοίτων κυπριακών λυκείων που λειτουργούν στην Κύπρο (με πρόγραμμα σπουδών της κυπριακής δημοκρατίας)
- Ελλήνων αποφοίτων ξένων λυκείων ή αντίστοιχων σχολείων που λειτουργούν στο εξωτερικό (με πρόγραμμα σπουδών χώρας που δεν είναι μέλος της ευρωπαϊκής ένωσης)
Στο φροντιστήριο μας υπάρχουν τμήματα ειδικά διαμορφωμένα για τα δυο ειδικά μαθήματα (ελεύθερο και γραμμικό σχέδιο) που είναι προαπαιτούμενα για τις σχόλες στις εξετάσεις των ομογενών οι Ελλήνων του εξωτερικού.
Για πιο αναλυτικές πληροφορίες μπορείτε να μας καλέσετε ή να περάσετε από το χώρο μας για ενημέρωση.
| ΔΟΜΉ ΤΜΗΜΑΤΟΣ | |
| |
6-8 μαθητές |
| |
επιλογή καθηγητή |
| |
60΄μαθήματα |
| |
ΠΑΡ- ΣΑΒ |
Θέματα εξετάσεων ομογενών

ΘΕΜΑ ΟΜΟΓΕΝΩΝ 2021 ΓΡ
ΘΕΜΑ ΟΜΟΓΕΝΩΝ 2021 ΓΡ

ΘΕΜΑ ΟΜΟΓΕΝΩΝ 2020 ΓΡ
ΘΕΜΑ ΟΜΟΓΕΝΩΝ 2020 ΓΡ

ΘΕΜΑ ΟΜΟΓΕΝΩΝ 2019 ΓΡ
ΘΕΜΑ ΟΜΟΓΕΝΩΝ 2019 ΓΡ

ΘΕΜΑ ΟΜΟΓΕΝΩΝ 2018 ΓΡ
ΘΕΜΑ ΟΜΟΓΕΝΩΝ 2018 ΓΡ

ΘΕΜΑ ΟΜΟΓΕΝΩΝ 2018 ΕΛ
ΘΕΜΑ ΟΜΟΓΕΝΩΝ 2018 ΕΛ

ΘΕΜΑ ΟΜΟΓΕΝΩΝ 2017 ΓΡ
ΘΕΜΑ ΟΜΟΓΕΝΩΝ 2017 ΓΡ

ΘΕΜΑ ΟΜΟΓΕΝΩΝ 2017 ΕΛ
ΘΕΜΑ ΟΜΟΓΕΝΩΝ 2017 ΕΛ

ΘΕΜΑ ΟΜΟΓΕΝΩΝ 2016 ΓΡ
ΘΕΜΑ ΟΜΟΓΕΝΩΝ 2016 ΓΡ

ΘΕΜΑ ΟΜΟΓΕΝΩΝ 2016 ΕΛ
ΘΕΜΑ ΟΜΟΓΕΝΩΝ 2016 ΕΛ

ΘΕΜΑ ΟΜΟΓΕΝΩΝ 2015 ΓΡ
ΘΕΜΑ ΟΜΟΓΕΝΩΝ 2015 ΓΡ

ΘΕΜΑ ΟΜΟΓΕΝΩΝ 2015 ΕΛ
ΘΕΜΑ ΟΜΟΓΕΝΩΝ 2015 ΕΛ

ΘΕΜΑ ΟΜΟΓΕΝΩΝ 2014 ΓΡ
ΘΕΜΑ ΟΜΟΓΕΝΩΝ 2014 ΓΡ

ΘΕΜΑ ΟΜΟΓΕΝΩΝ 2014 ΕΛ
ΘΕΜΑ ΟΜΟΓΕΝΩΝ 2014 ΕΛ

ΘΕΜΑ ΟΜΟΓΕΝΩΝ 2013 ΓΡ
ΘΕΜΑ ΟΜΟΓΕΝΩΝ 2013 ΓΡ

ΘΕΜΑ ΟΜΟΓΕΝΩΝ 2013 ΕΛ
ΘΕΜΑ ΟΜΟΓΕΝΩΝ 2013 ΕΛ

ΘΕΜΑ ΟΜΟΓΕΝΩΝ 2012 Γ
ΘΕΜΑ ΟΜΟΓΕΝΩΝ 2012 Γ

ΘΕΜΑ ΟΜΟΓΕΝΩΝ 2012 ΕΛ
ΘΕΜΑ ΟΜΟΓΕΝΩΝ 2012 ΕΛ

ΘΕΜΑ ΟΜΟΓΕΝΩΝ 2011 ΓΡ
ΘΕΜΑ ΟΜΟΓΕΝΩΝ 2011 ΓΡ
![]()
Εξετάσεις από ΕΠΑΛ
Περιγραφή
Στο φροντιστήριο μας υπάρχουν ειδικά διαμορφωμένα τμήματα για της πανελλήνιες εξετάσεις ημερήσιων και εσπερινών επαγγελματικών λυκείων (ομάδα α) και μαθημάτων ειδικότητας επαγγελματικών λυκείων (ομάδα β) και συγκεκριμένα για τα παρακάτω μαθήματα :Μαθήματα ειδικότητας επαγγελματικών λυκείων
- αρχιτεκτονικό σχέδιο.
- ελεύθερο σχέδιο.
- γραμμικό σχέδιο.
Για πιο αναλυτικές πληροφορίες μπορείτε να μας καλέσετε ή να περάσετε από το χώρο μας για ενημέρωση.
| ΔΟΜΗ ΤΜΗΜΑΤΟΣ | |
| |
6-8 μαθητές |
| |
επιλογή καθηγητή |
| |
60΄μαθήματα |
| |
ΠΑΡ- ΣΑΒ |
Θέματα εξετάσεων επαγγελματικών λυκείων

ΘΕΜΑ ΕΠΑΛ Αρχιτεκτονικό Σχέδιο 2022
ΘΕΜΑ ΕΠΑΛ Αρχιτεκτονικό Σχέδιο 2022

ΘΕΜΑ ΕΠΑΛ Αρχιτεκτονικό Σχέδιο 2021
ΘΕΜΑ ΕΠΑΛ Αρχιτεκτονικό Σχέδιο 2021

ΘΕΜΑ ΕΠΑΛ Αρχιτεκτονικό Σχέδιο 2020
ΘΕΜΑ ΕΠΑΛ Αρχιτεκτονικό Σχέδιο 2020

ΘΕΜΑ ΕΠΑΛ Αρχιτεκτονικό Σχέδιο 2019
ΘΕΜΑ ΕΠΑΛ Αρχιτεκτονικό Σχέδιο 2019

ΘΕΜΑ ΕΠΑΛ Αρχιτεκτονικό Σχέδιο 2018
ΘΕΜΑ ΕΠΑΛ Αρχιτεκτονικό Σχέδιο 2018

ΘΕΜΑ ΕΠΑΛ Αρχιτεκτονικό Σχέδιο 2017
ΘΕΜΑ ΕΠΑΛ Αρχιτεκτονικό Σχέδιο 2017

ΘΕΜΑ ΕΠΑΛ Αρχιτεκτονικό Σχέδιο 2016
ΘΕΜΑ ΕΠΑΛ Αρχιτεκτονικό Σχέδιο 2016

ΘΕΜΑ ΕΠΑΛ Αρχιτεκτονικό Σχέδιο 2015
ΘΕΜΑ ΕΠΑΛ Αρχιτεκτονικό Σχέδιο 2015

ΘΕΜΑ ΕΠΑΛ Αρχιτεκτονικό Σχέδιο 2014
ΘΕΜΑ ΕΠΑΛ Αρχιτεκτονικό Σχέδιο 2014

ΘΕΜΑ ΕΠΑΛ Αρχιτεκτονικό Σχέδιο 2013
ΘΕΜΑ ΕΠΑΛ Αρχιτεκτονικό Σχέδιο 2013

ΘΕΜΑ ΕΠΑΛ Αρχιτεκτονικό Σχέδιο 2012
ΘΕΜΑ ΕΠΑΛ Αρχιτεκτονικό Σχέδιο 2012

ΘΕΜΑ ΕΠΑΛ Αρχιτεκτονικό Σχέδιο 2011
ΘΕΜΑ ΕΠΑΛ Αρχιτεκτονικό Σχέδιο 2011

ΘΕΜΑ ΕΠΑΛ Αρχιτεκτονικό Σχέδιο 2010
ΘΕΜΑ ΕΠΑΛ Αρχιτεκτονικό Σχέδιο 2010

ΘΕΜΑ ΕΠΑΛ Αρχιτεκτονικό Σχέδιο 2009
ΘΕΜΑ ΕΠΑΛ Αρχιτεκτονικό Σχέδιο 2009

ΘΕΜΑ ΕΠΑΛ Αρχιτεκτονικό Σχέδιο 2008
ΘΕΜΑ ΕΠΑΛ Αρχιτεκτονικό Σχέδιο 2008

ΘΕΜΑ ΕΠΑΛ Αρχιτεκτονικό Σχέδιο 2007
ΘΕΜΑ ΕΠΑΛ Αρχιτεκτονικό Σχέδιο 2007