
ΘΕΜΑ: «ΠΥΡΓΟΣΠΙΤΟ ΣΤΗ ΜΑΝΗ»
ΠΕΡΙΓΡΑΦΗ:
Ο πύργος του θέματος (Πυργόσπιτο Κεραμίδα) χτίστηκε τον 19ο αιώνα (1871), κοντά στον παραδοσιακό οικισμό της Βάθειας. Τοποθετημένος αντικριστά με μία παρόμοια πυργοκατασκευή, συγκροτούσε μαζί της ένα σύστημα δύο ισχυρών οχυρωμένων συγκροτημάτων, που έλεγχαν το πέρασμα για την Παραταινάρια περιοχή. Οι ισχυρές ομάδες της Μέσα Μάνης οικοδομούσαν πύργους, ως άγρυπνες βίγλες, ως φυλακτήρια, καταφύγια και ορμητήρια. Με αυτόν τον τρόπο έλεγχαν τον χώρο και τις κινήσεις στην περιοχή, προάσπιζαν τη ζωή και την περιουσία τους και
στήριζαν τις επεκτατικές τους βλέψεις. Η ανέγερση πύργων εντάθηκε πολύ στο διάστημα 1770 – 1830, ενώ στο Νότο συνεχίστηκε μέχρι το 1880. Ο πολεμόπυργος έχει ορθογώνια βάση και θεμελιώθηκε σε στέρεο έδαφος, σε βράχους, τις γνωστές «ριζωμιές».
Επιμέρους στοιχεία:
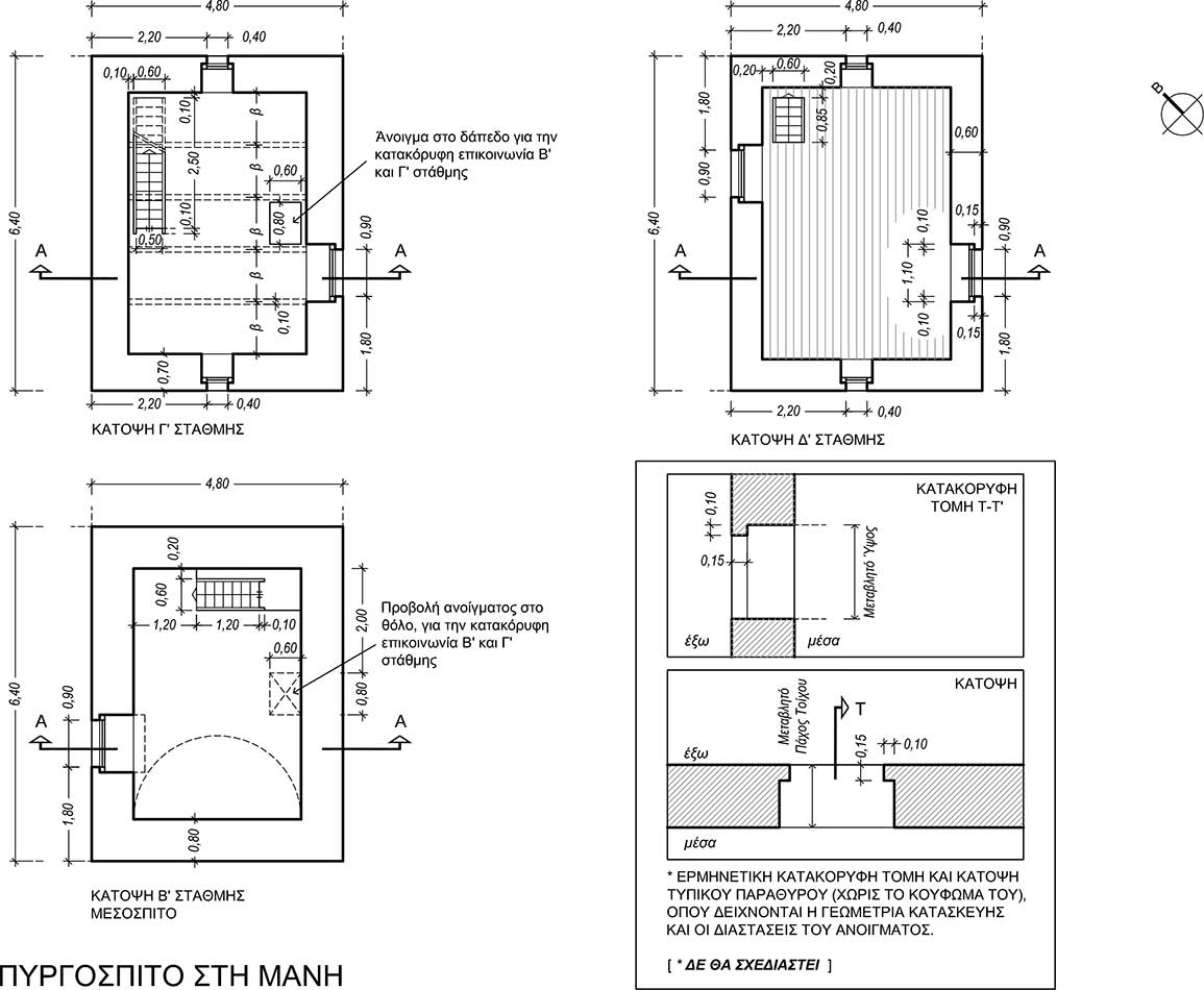
- Οι εξωτερικοί τοίχοι του κτίσματος στην Α΄ και Β΄ στάθμη έχουν πάχος 0,80μ.,στη Γ΄ στάθμη 0,70μ. και στη Δ΄ στάθμη 0,60μ.
- Όλα τα κουφώματα είναι ξύλινα και τοποθετούνται στον εξωτερικό τοίχο όπως φαίνεται στις κατόψεις.
- Οι κάσες όλων των κουφωμάτων έχουν διατομή 0,10μ. x 0,10μ. Οι διαστάσεις των κουφωμάτων, που δίνονται στο σχέδιο, είναι από τοίχο σε τοίχο, δηλαδή,περιλαμβάνουν και το πάχος των κασών.
- Τα παράθυρα έχουν μόνο μονόφυλλα πατζούρια, χωρίς τζαμιλίκια, το δε πάχοςόλων των φύλλων των κουφωμάτων είναι 0,05μ.
- Oι διατομές των ξύλινων δοκαριών στα πατώματα, που φέρουν το ξύλινο δάπεδο, είναι 0,10μ. x 0,15μ. και τοποθετούνται στον χώρο σε ίσες αποστάσεις μεταξύ τους.
- Η επικοινωνία μεταξύ Β΄ και Γ΄ στάθμης γίνεται με μικρό άνοιγμα (καταπακτή), όπως φαίνεται στο σχέδιο.
ΖΗΤΟΥΝΤΑΙ:
Α. Να σχεδιασθούν με μαύρη σινική μελάνη ή με μολύβι χρησιμοποιώντας τα
κατάλληλα πάχη γραμμών τα εξής:
1. Όλες οι κατόψεις (στάθμη Α΄, Β΄, Γ΄ και Δ΄) σε κλίμακα 1:50, σύμφωνα με τις διαστάσεις σε μέτρα, όπως αυτές αναγράφονται στα σχέδια και αναφέρονται στην περιγραφή του θέματος.
α. Στα σχέδια των κατόψεων πρέπει να σχεδιαστούν:
Oι κατόψεις με τα επιμέρους στοιχεία, όπως οι σκάλες, ο συμβολισμός του ξύλινου πατώματος και οι διακεκομμένες γραμμές που αντιστοιχούν στις προβολές των θόλων και στις δοκούς των ξύλινων πατωμάτων, όπως φαίνονται στο σχέδιο. Ο συμβολισμός της τομής σε μία μόνο κάτοψη της επιλογής σας. Με ελεύθερο χέρι, η πλακόστρωση της αυλής, το δέντρο και ο συμβολισμός του χώματος στις περιοχές που φαίνονται ενδεικτικά στο σχέδιο.
β. Στο σχέδιο της τομής πρέπει να σχεδιαστούν:
Η τομή όπως φαίνεται στο υπόδειγμα. Με ελεύθερο χέρι, και ανάλογα με την επιλογή των υποψηφίων, το τμήμα
όψης της λιθοδομής (σε έκταση κατά την κρίση των υποψηφίων) και το δέντρο, τα οποία έχουν αποδοθεί ενδεικτικά στο υπόδειγμα.
2. Ο τίτλος του θέματος «ΠΥΡΓΟΣΠΙΤΟ ΣΤΗ ΜΑΝΗ» με τη χρήση οργάνων σχεδίασης.
3. Οι τίτλοι των σχεδίων ΚΑΤΟΨΗ ΣΤΑΘΜΗΣ Α΄, Β΄, Γ΄, Δ΄ και ΤΟΜΗ Α-Α΄ με ελεύθερο χέρι.
4. Το σύμβολο του Βορρά, που μπορεί να είναι της επιλογής των υποψηφίων, με τα επιτρεπόμενα όργανα σχεδίασης ή με ελεύθερο χέρι.
Β. Να μη σχεδιαστούν:
Οι γραμμές διαστάσεων και οι στάθμες των επιπέδων. Η ερμηνευτική κατακόρυφη τομή Τ-Τ΄ και η κάτοψη τυπικού παράθυρου, όπου δείχνονται η γεωμετρία κατασκευής και οι διαστάσεις του ανοίγματος.
Γ. Να μην αναγραφούν:
Οι διαστάσεις ή άλλες ενδείξεις, τα υψόμετρα των επιπέδων και οι ονομασίες των χώρων.
Δ. Να μη διαγραμμισθούν:
Τα τεμνόμενα τμήματα στα σχέδια.
ΔΙΕΥΚΡΙΝΙΣΕΙΣ
1. Η τοποθέτηση των σχεδίων μπορεί να γίνει στο χαρτί σχεδίασης, είτε κατακόρυφα είτε οριζόντια.
2. Οι θέσεις των τίτλων, ο τύπος και το μέγεθος των γραμμάτων μπορούν να επιλεχθούν από τους υποψηφίους.
3. Οι διαστάσεις θα λαμβάνονται από τους αναγραφόμενους αριθμούς, οι οποίοιαναφέρονται σε μέτρα (μ). Οι διαστάσεις, που δεν αναγράφονται, προκύπτουν γραφικά.
4. Στα σχέδια δεν θα αναγραφούν διαστάσεις, γραμμές διαστάσεων, στάθμες, γράμματα ή άλλες ενδείξεις, εκτός από αυτές που περιλαμβάνονται στα ζητούμενα του θέματος.
ΚΡΙΤΗΡΙΑ ΑΞΙΟΛΟΓΗΣΗΣ
Α. Η διάταξη στο χαρτί 20/100
1. Τοποθέτηση και συσχετισμός των σχεδίων 10/100
2. Ισορροπημένη σύνθεση στο χώρο σχεδίασης 10/100
Β. Η σωστή σχεδίαση του θέματος 40/100
1. Σωστή μεταφορά κλίμακας 15/100
2. Σωστή γεωμετρική απεικόνιση 25/100
Γ. Η κατάλληλη επιλογή γραμμών 20/100
1. Πάχη γραμμών 10/100
2. Ποιότητα γραμμών 10/100
Δ. Τα γράμματα και οι συμβολισμοί (η ένδειξη της τομής, ο συμβολισμός του ξύλινου πατώματος, το πλακόστρωτο, το δέντρο και ο συμβολισμός του χώματος) 10/100
Ε. Το συνολικό αποτέλεσμα 10/100
1. Πληρότητα συνόλου (ολοκλήρωση) 5/100
2. Ποιότητα συνόλου 5/100
ΟΔΗΓΙΕΣ
1. Να διανεμηθούν στους υποψηφίους το φύλλο με τα σχέδια-υποδείγματα και οι τέσσερις (4) σελίδες του θέματος.
2. Οι υποψήφιοι κατά την αποχώρησή τους επιστρέφουν στους επιτηρητές τις φωτοτυπίες και το φύλλο με τα σχέδια-υποδείγματα.
3. Το θέμα δεν θα εκφωνηθεί και δεν θα γραφεί στον πίνακα.
4. Καθ’ όλη τη διάρκεια της εξέτασης τα φώτα της αίθουσας (όχι προβολείς) πρέπει να παραμένουν ανοικτά.
5. Οι υποψήφιοι μπορούν να χρησιμοποιήσουν ως πρόχειρο σχεδίασης λευκό χαρτί περίπου Α4.
6. Μετά την παρέλευση του πρώτου τρίωρου δίνεται στους υποψηφίους η δυνατότητα δεκαπεντάλεπτου (15 λεπτά) διαλείμματος, χωρίς παράταση του προκαθορισμένου εξάωρου.
7. Απαγορεύεται το κάπνισμα στις αίθουσες εξέτασης.
8. Οι επιτηρητές υπογράφουν στην κάτω δεξιά γωνία του χώρου σχεδίασης.
9. Η διάρκεια της εξέτασης: έξι (6) ώρες.
10. Έναρξη του χρόνου εξέτασης: αμέσως μετά τη διανομή των φωτοτυπιών στους υποψηφίους.
11. Δυνατότητα αποχώρησης: 14:00.
12. Η διάρκεια εξέτασης και ο χρόνος δυνατής αποχώρησης να αναγραφούν στον πίνακα της αίθουσας.
ΚΑΛΗ ΕΠΙΤΥΧΙΑ
ΤΕΛΟΣ ΜΗΝΥΜΑΤΟΣ